제품설명 > 판넬

판넬
홈 > 큐피클, 조립식판넬 > 판넬

제품설명

페이지 정보

작성자 제작관리자 댓글 0건 조회 1,504회 작성일 17-08-17 15:33

본문

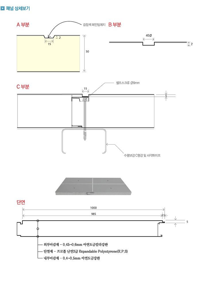
35dc50ad84d7c30193f5a7f25043d8ea_1502951466_236.jpg
35dc50ad84d7c30193f5a7f25043d8ea_1502951478_113.jpg
35dc50ad84d7c30193f5a7f25043d8ea_1502951483_5889.jpg
35dc50ad84d7c30193f5a7f25043d8ea_1502951492_7302.jpg
35dc50ad84d7c30193f5a7f25043d8ea_1502951496_947.jpg
35dc50ad84d7c30193f5a7f25043d8ea_1502951503_9722.jpg
35dc50ad84d7c30193f5a7f25043d8ea_1502951507_9846.jpg
35dc50ad84d7c30193f5a7f25043d8ea_1502951515_0057.jpg
35dc50ad84d7c30193f5a7f25043d8ea_1502951521_4324.jpg
35dc50ad84d7c30193f5a7f25043d8ea_1502951526_9827.jpg
 

댓글목록

등록된 댓글이 없습니다.

하단 바
대한글로벌개발
경기도 김포시 대곶면 대곶북로495 (김포공장) TEL 031-342-0031 FAX 031-342-0032
부산시 강서구 대저2동528-39(부산공장)TEL051-941-2931 FAX 051-941-2932
이메일 globalon01233@naver.com

Copyright ⓒ www.대한글로벌개발.com All rights reserved.

관리자로그인 현대이지웹 바로가기